Характеристики системи Екобіл , серія BioTech system 80-500L PRO
Характеристики системи Екобіл , серія BioTech system 80-500L PRO
| К-ть пост. проживаючих: | 80 - 500 осіб |
| К-ть макс.користувачів: | 160 - 1000 осіб |
| Продуктивн. м3/добу: | номінальна 14 - 100 м3 |
| Матеріал: | поліпропілен |
| Область застосування: | Локальні очисні споруди встановлюються на маштабних житлових, виробничих, промислових, складських, медичних, навчальних, логістичних об'єктах, де є потреба в обладнанні великої продуктивності. Це комплекси із кількістю мешканців чи працівників від 80 осіб і більше. |
Ціна: уточняйте у менеджера
ПЕРЕВАГИ:
Ступінь очистки до 98 %;
Гарантія на систему 10 років;
Відсутність неприємних запахів;
Чотири ступені очистки аеротенку;
Сервісне обслуговування лише 1 раз в рік;Наявність біозавантаження, що сприяє збільшенню кількості колоній аеробних бактерій;
Наявність камери «усереднювач», що забезпечує поступову подачу стоків на очистку і сприяє якіснішому процесу очистки;
Корпус системи виготовляється із високоякісного поліпропілену (Röchling Engineering Plastics) австійського виробництва; Комплектуються надійними та якісними компресорами німецького та японського брендів Thomas (виробництво Індонезія), Hiblow (виробництво Філіппіни), Secoh (виробництво Китай);
Системи аерації виготовляються методом лазерної перфорації, що убезпечує від закупорювання аераційних отворів (при вкл./викл. компресора отвори закриваються/відкриваються);
Енергоощадні завдяки пульту керування системою, що дозволяє керувати подачею кисню на аератори, знижуючи таким чином енергоспоживання очисної системи вцілому;
Торгова марка BioTech system – це бренд з п’ятнадцятирічним досвідом виробництва та встановлення обладнання для очистки стічних вод, що пройшов за цей час глобальну модернізацію технології «аеротенк» (аеробні бактерії).
– Ступінь очищення ≥ 98%;
– 9-13 камерна система очистки стоків в комплекті із біозавантаженням;
– Станція виготовляється із поліпропілену, товщиною 10-12 мм, методом екструзійного зварювання;
– Наявність камери «усереднювач» (приймає залпові скиди стоків та дозовано подає їх через ерліфти в наступні камери на доочистку);
– Енергоощадна система завдяки економній роботі компресора (насос споживає більше кВт в 3-6 разів);
– Система подачі кисню і гомогенізації мулової суміші за допомогою компресора (повітродувки) і системи дифузорів дрібнодисперсної аерації.

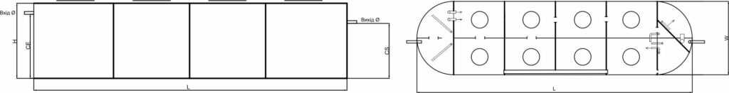
Умовні позначення: H – висота ( без горловини) W -загальна ширина L – довжина ( без патрубків) CS – висота до вих. патрубка CE- висота до вх. патрубка
| Модель станції | Продуктивність м3/добу | Габаритні розміри | CE | CS | Споживана потужність | ||
| H, мм | L, мм | W, мм | мм | мм | кВт/год. | ||
| 25 L PRO | 5 | 2 250 | 3 000 | 2 200 | 1 700 | 1 600 | 0,24 |
| 30 L PRO | 6 | 2 250 | 4 000 | 2 200 | 1 700 | 1 700 | 0,28 |
| 40 L PRO | 8 | 2 350 | 4 500 | 2 200 | 1 800 | 1 700 | 0,33 |
| 50 L PRO | 10 | 2 500 | 5 000 | 2 200 | 1 800 | 1 700 | 0,33 |
| 60 L PRO | 12 | 2 500 | 5 500 | 2 200 | 1 800 | 1 700 | 0,40 |
| 70 L PRO | 14 | 2 500 | 5 400 | 2 500 | 1 800 | 1 700 | 0,45 |
| 80 L PRO | 16 | 2 500 | 6 200 | 2 500 | 1 800 | 1 700 | 0,50 |
| 90 L PRO | 18 | 2 500 | 6 400 | 2 500 | 1 800 | 1 700 | 0,55 |
| 100 L PRO | 20 | 2 500 | 7 200 | 2 500 | 1 800 | 1 700 | 0,57 |
| 120 L PRO | 24 | 2 500 | 7 200 | 3 000 | 1 800 | 1 700 | 0,81 |
| 140L PRO | 28 | 2 500 | 7 800 | 3 000 | 1 800 | 1 700 | 0,81 |
| 150 L PRO | 30 | 2 500 | 8 800 | 3 000 | 1 800 | 1 800 | 0,81 |
– УФ-лампа знезараження;
– Зовнішній блок механічних грат для затримання сміття;
– Блок зневоднення осаду на основі спеціальних геотекстильних мішків, що значно полегшують процес обслуговування;
– Блок сигналізації аварійного рівня в усереднювачі (світловий чи світло-звуковий). Можливе використання GSM-модуля для передачі сигналу на мобільний телефон.
![]()