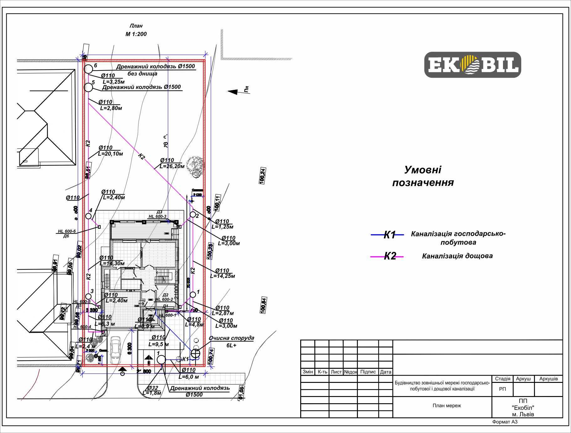
Компанія “Екобіл” спеціалізується на розробці проектів ( проєктуванні очисних споруд ) для об’єктів очищення стічних вод різної продуктивності. Ми пропонуємо вирішення для автономних систем каналізації житлових і промислових об’єктів, забезпечуючи очищення стоків відповідно до нормативів та можливість безпечного скидання в природні водойми. Наша експертна група здійснює проектування для очищення промислових стоків від небезпечних відходів, спрямоване на підготовку їх до підключення до загальноміської каналізаційної системи відповідно до чинних норм.

